Woodcrest Estates - "N" Series Floor Plans

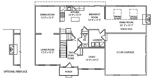
First Floor

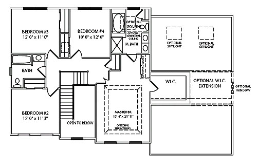
Second Floor
Elevations ·
Options
Call 610-409-9900 or
click here to contact us about Woodcrest Estates!
***Prices and Features are Subject to Change without Notice***
Community Homepage ·
Community Fact Sheet ·
Pricing
Standard Features ·
Community Plot Plan ·
Map and Directions