|
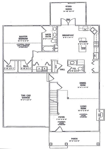
1st Floor
Master Bedroom
16'1" x 14'8"
Master Bath
6'2" x 11'0"
Living Room
13'4" x 14'0"
Dining Room
13'4" x 11'0"
Kitchen
8'6" x 16'9"
Breakfast Area
9'0" x 14'7"
2 Car Garage
19'2" x 23'0"
Foyer
7'6" x 14'0"
Additional Spaces
Powder Room
Porch
Optional Sunroom
2 Walk-In Closets
Laundry
|
|
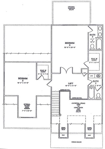
2nd Floor (Total of 3 Bedrooms and 2 1/2 Baths)
Bedroom #2
19'2" x 14'0"
Walk-In Closet
5'10" x 7'0"
Bathroom #2
5'7" x 10'8"
Bedroom #3
15'0" x 20'0"
Walk-In Closet
5'7" x 9'4"
Bathroom #3
5'7" x 10'4"
Loft
15'0" x 11'0"
Additional Spaces
Optional Sitting Room
|
|
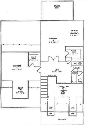
2nd Floor (Total of 3 Bedrooms and 3 Baths)
Bedroom #2
19'2" x 14'0"
Walk-In Closet
5'10" x 7'0"
Bathroom #2
5'7" x 10'8"
Bedroom #3
12'2" x 20'0"
Sitting Area
8'8" x 12'9"
Walk-In Closet
8'4" x 7'0"
Loft
15'0" x 11'0"
Additional Spaces
Optional Sitting Room
|
|
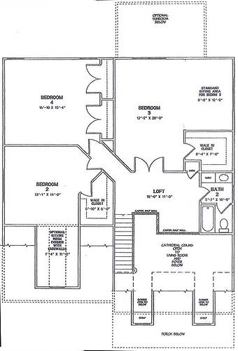
2nd Floor (Total of 4 Bedrooms and 2 1/2 Baths)
Bedroom #2
13'1" x 14'0"
Walk-In Closet
5'10" x 6'0"
Bathroom #2
5'7" x 10'8"
Bedroom #3
12'2" x 20'0"
Sitting Area
8'8" x 12'9"
Walk-In Closet
8'4" x 7'0"
Bedroom #4
16'10" x 15'4"
Loft
15'0" x 11'0"
Additional Spaces
Optional Sitting Room
|
|
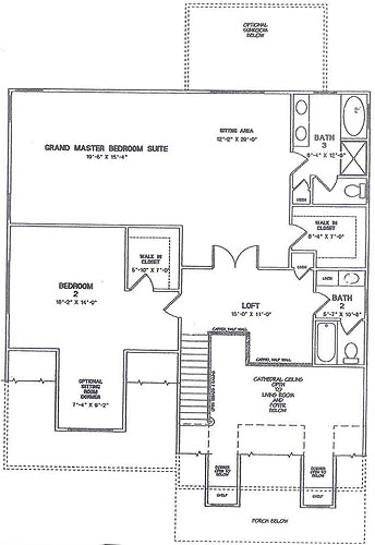
2nd Floor (Total of 3 Bedrooms and 3 1/2 Baths)
2 Master Suites
Master Suite #2
19'6" x 15'4"
Sitting Area
12'2" x 20'0"
Walk-In Closet
8'4" x 7'0"
Bathroom #3
8'4" x 12'9"
Bedroom #2
19'2" x 14'0"
Walk-In Closet
5'10" x 7'0"
Bathroom #2
5'7" x 10'8"
Loft
15'0" x 11'0"
Additional Spaces
Optional Sitting Room
|